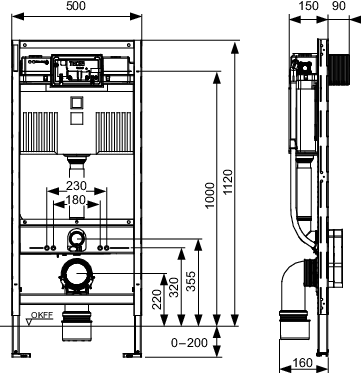
TECE TECEprofil stelaż podtynkowy do WC ze spłuczką Uni do uniwersalnego przyłączenia toalety myjącej, wysokość montażowa 1120 mm

Dostępność: Ups, wyprzedany! Skontaktuj się z nami po termin dostawy.
Dostawa: Cena nie zawiera ewentualnych kosztów płatności sprawdź formy dostawy
Cena: 1 390,00 zł

Cena regularna:

1390.00
Najniższa cena z 30 dni przed obniżką:
ilość szt.

towar niedostępny

dodaj do przechowalni
Ocena: 0
Producent: TECE
Kod produktu: 9300379

Opis

TECEprofil stelaż podtynkowy do WC ze spłuczką Uni do uniwersalnego przyłączenia toalety myjącej, wysokość montażowa 1120 mm

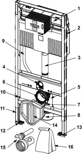
Moduł WC z instalacją przycisku spłukującego „easy fit” i rurką instalacyjną do podłączenia elektronicznych toalet myjących. Do mocowania na kształtownikach stalowych TECEprofil lub do montażu w ścianach z profili metalowych lub drewnianych oraz jako ścianka przednia lub moduł narożnikowy.



Spłuczka Uni uruchamiana z przodu:

  • bezpieczny zbiornik z tworzywa sztucznego odpornego na uderzenia, przetestowany zgodnie z normą EN 14055
  • kompletnie zmontowana i zaplombowana spłuczka
  • przyłącze spłuczki z gwintem zewnętrznym R 1/2", kompatybilne z adapterami szybkiego montażu
  • pojemność zbiornika 10 litrów, standardowe ustawienie ilości spłukiwanej wody 6 litrów, opcjonalnie możliwość ustawienia ilości spłukiwanej wody 4,5/7,5/9 litrów, w systemie spłukiwania dwoma ilościami wody możliwość spłukiwania 3 litrami, pozostała ilość wody do natychmiastowego spłukiwania czyszczącego.
  • izolacja przeciw skraplaniu wody
  • do przycisków spłukujących TECE, elektroniki spłukującej i armatury WC
  • spłukiwanie jedną lub dwoma ilościami wody
  • montaż przycisków spłukujących „easy fit”
  • tunel montażowy do otworu rewizyjnego może zostać skrócony bez użycia narzędzi
  • cichy zawór napełniający, grupa akustyczna 1 zgodnie z normą DIN 4109
  • regulacja ciśnienia wody spłukującej bez konieczności demontażu zaworu spustowego


Rama stelaża:
  • samonośna, malowana proszkowo
  • dwie szpilki mocujące i nakrętki M 12
  • kolano odpływowe do WC DN 90 z adapterem przyłączeniowym DN 90/100, wykonane z PP
  • adapter przyłączeniowy odpowiedni także do montażu poziomego
  • kpl. kroćcow przyłączeniowych wraz z zatyczkami, do montażu ceramiki
  • puszka przyłączeniowa z szablonem montażowym do wykonania uniwersalnego przyłącza elektrycznego i wodnego dla toalety myjącej (sprawdź pozycję przyłącza zimnej wody)


Możliwość podwyższonego mocowania ceramiki na wysokości siedzenia 48 cm zgodnie z niemiecką normą DIN 18040 (DIN 18040: Budownictwo bez barier – część 1: Obiekty użyteczności publicznej).



Należy zamawiać oddzielnie:
  • Przycisk spłukujący do WC (patrz przyciski spłukujące)
  • Mocowanie górne stelaża
  • Zestaw przyłączeniowy do toalet myjących 1120 mm
  • Płytka maskująca z koszem na kostki czyszczące (opcja)

Uwaga:
W przypadku stosowania ceramiki WC o zmniejszonej powierzchni stykowej (= odstęp między bolcem mocującym a dolną krawędzią powierzchni stykowej nie większy niż 18 cm) - np.: V & B Memento, Subway 2.0 – konieczny jest montaż stalowych podpór nr kat. 9041029 w dolnej części zabudowy.

Dane techniczne

Masa netto 12,62 kg
Linia TECEprofil
Długość/Głębokość (mm) 500
Szerokość (mm) 1120
Wysokość (mm) 150,5

Koszty dostawy Cena nie zawiera ewentualnych kosztów płatności

Kraj wysyłki:
Zaloguj się
Nie pamiętasz hasła? Zarejestruj się
Infolinia 515 35 88 35
do góry
Sklep jest w trybie podglądu
Pokaż pełną wersję strony
Sklep internetowy Shoper.pl